




- 価格
- 700万円
- 種別
- 中古住宅
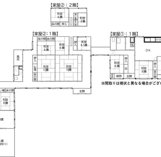
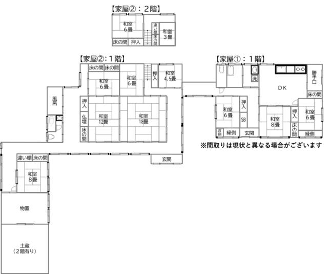
- 間取
- 11DK
-
- 所在地
- 新潟県燕市佐善3021
- 交通
- JR越後線 粟生津駅 距離1120m 徒歩14分
物件詳細
| 築年月 | 1986/01 | 新築/中古 | 中古 |
|---|---|---|---|
| 面積 | 329.24m² | 計測方式 | 壁芯 |
| 建物階数 | 地上2階 | ||
| 建物構造 | 木造 | ||
| 間取内容 | 和室3畳 1階 1室 和室4.5畳 1階 1室 和室6畳 1階 5室 和室8畳 1階 2室 和室12畳 1階 1室 和室18畳 1階 1室 和室6畳 2階 2室 和室3畳 2階 1室 和室6畳 2階 1室 DK1階 1室 | ||
| 駐車場 | 駐車場3台以上 | ||
| 取引態様 | 仲介 | ||
| 引渡/入居時期 | 相談 | 現況 | 空家 |
| 地目 | 宅地 | 用途地域 | 無指定 |
| 都市計画 | 非線引き区域 | 地勢 | 平坦 |
| 土地面積 | 2230.26m² | 土地面積計測方式 | 公簿 |
| 建ぺい率 | 70% | 容積率 | 200% |
| 土地権利 | 所有権 | 接道状況 | 一方 |
| 接道方向1 | 北 | ||
| 接道種別1 | 私道 | 接道幅員1 | |
| 学区・周辺環境 |
燕市立分水北小学校 燕市立分水中学校 |
||
| 設備・条件 | ガスコンロ 洗髪洗面化粧台 冷房 暖房 エアコン 地デジ対応 都市ガス 公営水道 排水汲取 | ||
| 物件番号 | hw18 | 掲載期限日 | 2025/12/31 |
| 自社物 | 先物 | 状態 | 売出中 |
| 特記事項 | ・家屋①、②合わせて11DK ・乗入占用許可申請必要 ・水道:宅内に引込有 ・都市ガス:宅内に引込有 ・下水:浄化槽有 ・洋式トイレ:水洗 ・和式トイレ:汲み取り ・側溝有 ・消雪パイプ有 ・北側:建築基準法上の道路ではない | ||
Loading...
※物件掲載内容と現況に相違がある場合は現況を優先と致します。
お問合せ
お電話か以下フォームよりご連絡ください。
TEL 0258-86-5286(平日)
営業時間 8:30~17:30
内見やご契約などは土日祝もOK
宅建免許番号: 新潟県知事(2)第5217号
<サイトに掲載されていない物件も多数!>
ご来店いたけると、さらにご案内できます。









