










- 価格
- 2,498万円
- 種別
- 中古住宅
-
- 所在地
- 新潟県加茂市若宮1丁目6-6
- 交通
- JR信越本線 保内駅 距離1440m 徒歩18分
物件詳細
| 築年月 | 1980/12/01 | 新築/中古 | 中古 |
|---|---|---|---|
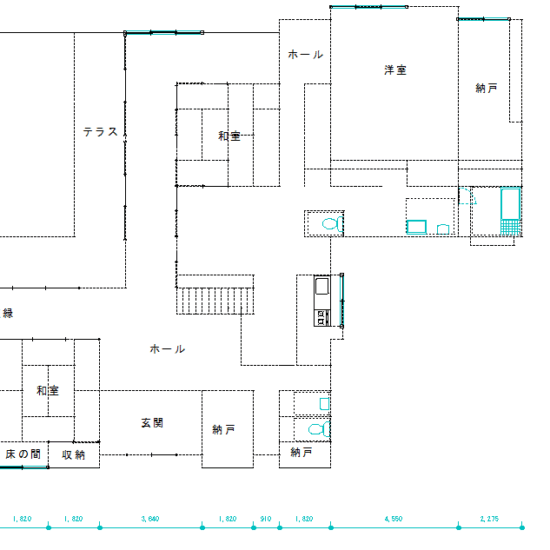
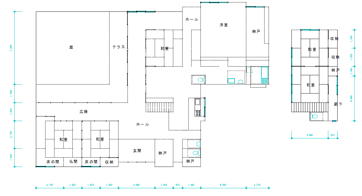
| 面積 | 237.5m² | 計測方式 | 壁芯 |
| 建物階数 | 地上2階 | ||
| 建物構造 | 木造 | ||
| 間取内容 | 和室8畳 1階 2室 和室6畳 1階 1室 洋室9畳 1階 1室 DK11.2畳 1階 1室 和室8畳 2階 1室 和室6畳 2階 1室 | ||
| 駐車場 | 3台分有 | ||
| 取引態様 | 一般 | ||
| 引渡/入居時期 | 相談 | 現況 | 空家 |
| 地目 | 宅地 | 用途地域 | 第一種住居 |
| 都市計画 | 非線引き区域 | 地勢 | 平坦 |
| 土地面積 | 824.12m² | 土地面積計測方式 | 公簿 |
| 建ぺい率 | 60% | 容積率 | 160% |
| 土地権利 | 所有権 | 接道状況 | 一方 |
| 接道方向1 | 北 | ||
| 接道種別1 | 公道 | 接道幅員1 | 3.7m |
| 学区・周辺環境 |
加茂市南小学校 加茂市若宮中学校 |
||
| 設備・条件 | ガスコンロ 三口コンロ 給湯 追い焚き 洗髪洗面化粧台 浴室1.6x2.0m以上 冷房 暖房 エアコン W.INクローゼット 地デジ対応 都市ガス 公営水道 排水下水 駐車場有 専用庭 | ||
| 物件番号 | 加茂市若宮 中古住宅 | 掲載期限日 | 2026/3/31 |
| 自社物 | 先物 | 状態 | 売出中 |
| 特記事項 | 建て替えの際、セットバックが必要(3.7m道路)の為。 | ||
Loading...
※物件掲載内容と現況に相違がある場合は現況を優先と致します。
お問合せ
お電話か以下フォームよりご連絡ください。
TEL 0258-86-5286(平日)
営業時間 8:30~17:30
内見やご契約などは土日祝もOK
宅建免許番号: 新潟県知事(2)第5217号
<サイトに掲載されていない物件も多数!>
ご来店いたけると、さらにご案内できます。












