















- 価格
- 1,650万円
- 種別
- 中古住宅
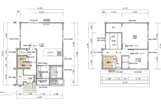
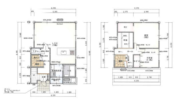
- 間取
- 2LDK
-
- 所在地
- 新潟県三条市西四日町1丁目6-27
- 交通
- JR信越本線 三条駅 距離1360m 徒歩17分
(バス西四日町3丁目バス停 停歩2分)
物件詳細
| 築年月 | 2021/03 | 新築/中古 | 中古 |
|---|---|---|---|
| 面積 | 84.66m² | 計測方式 | 壁芯 |
| 建物階数 | 地上2階 | 部屋階数 | 2階 |
| 建物構造 | 木造 | ||
| 間取内容 | 洋室4.5畳 2階 1室 洋室8畳 2階 1室 LDK18畳 1階 1室 | ||
| 駐車場 | 2台分有 | ||
| 取引態様 | 仲介 | ||
| 引渡/入居時期 | 相談 | 現況 | 空家 |
| 地目 | 宅地 | 用途地域 | 第一種住居 |
| 都市計画 | 非線引き区域 | 地勢 | 平坦 |
| 土地面積 | 145.48m² | 土地面積計測方式 | 公簿 |
| 建ぺい率 | 60% | 容積率 | 200% |
| 土地権利 | 所有権 | 接道状況 | 一方 |
| 接道方向1 | 南東 | 接道間口1 | 8.8m |
| 接道種別1 | 公道 | 接道幅員1 | 4m |
| 位置指定道路1 | 無 | ||
| 国土法届出 | 不要 | ||
| 学区・周辺環境 |
三条市立嵐南小学校 三条市立第一中学校 セブンイレブン、ローソン、スーパーマルイ、スーパーウオロク、ドラックトップス、クスリのアオキ、ウェルシア、三条市民プール、三条市嵐南公民館 |
||
| 設備・条件 | IHコンロ 給湯 追い焚き 洗髪洗面化粧台 バス専用 浴室1.6x2.0m以上 トイレ専用 バス・トイレ別 温水洗浄便座 冷房 暖房 エアコン W.INクローゼット 洗濯機置き場有 地デジ対応 公営水道 排水下水 排水その他 駐車場有 出窓 オール電化 全室出窓、シーリングファン、ロールカーテン、ダウンライト
|
||
| 物件番号 | ntt01 | 掲載期限日 | 2025/2/28 |
| 自社物 | 先物 | 状態 | 売出中 |
Loading...
※物件掲載内容と現況に相違がある場合は現況を優先と致します。
お問合せ
お電話か以下フォームよりご連絡ください。
TEL 0258-86-5286(平日)
営業時間 8:30~17:30
内見やご契約などは土日祝もOK
宅建免許番号: 新潟県知事(2)第5217号
<サイトに掲載されていない物件も多数!>
ご来店いたけると、さらにご案内できます。



















